Trilocale in vendita

Villongo, Via L. Cadorna
€ 240.000
3 locali 3 locali
100 Mq 100 Mq
2 bagni 2 bagni

Trilocale in vendita

Villongo, Via L. Cadorna

Descrizione annuncio

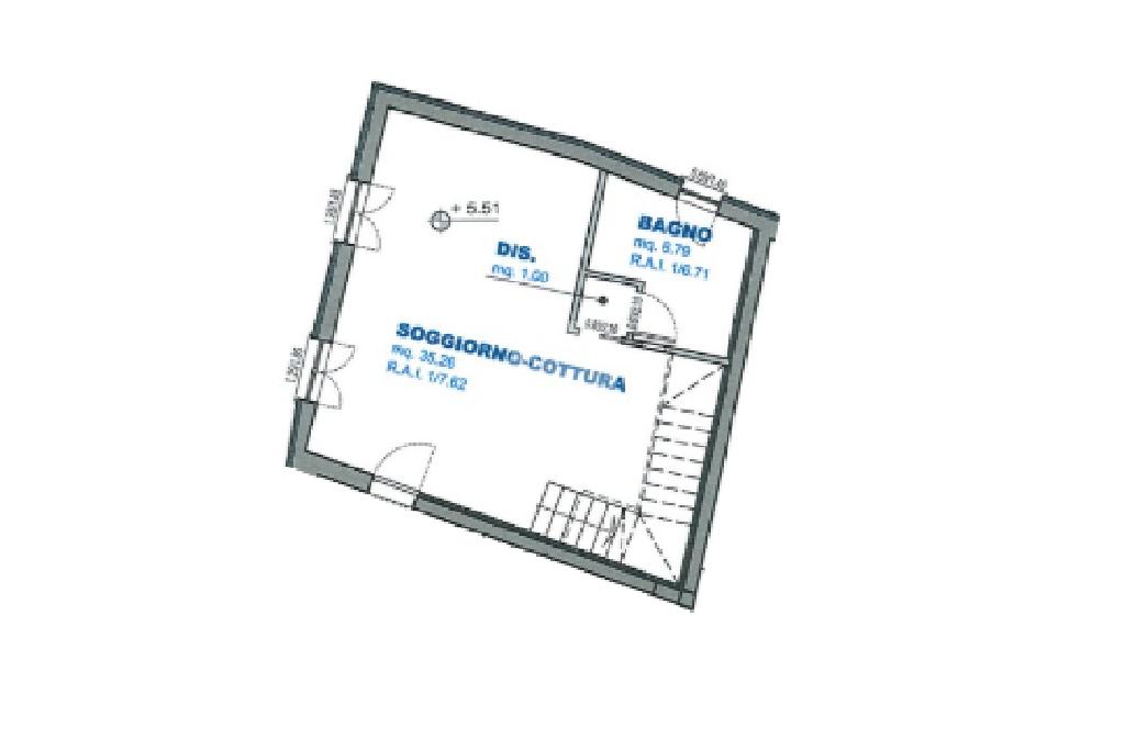
VILLONGO - Trilocale su Due Livelli in Palazzo Storico Ristrutturato con Travi a Vista

In un elegante edificio storico del 1900, attualmente in fase di completa ristrutturazione con consegna prevista per Aprile 2026, proponiamo in vendita un affascinante appartamento trilocale di 100 mq disposto su due livelli (primo e secondo piano).

L'abitazione è composta al primo piano da una luminosa zona giorno con soggiorno, cucina abitabile e bagno di servizio, mentre al secondo piano, caratterizzato da suggestive travi in legno a vista, si trovano due ampie camere da letto, un secondo bagno e un comodo ripostiglio, ideale come spazio di servizio o armadiatura supplementare. Completa la proprietà un balcone privato, perfetto per momenti di relax all'aperto. L'immobile è dotato di impianti moderni e finiture di qualità: riscaldamento a pavimento con pompa di calore, predisposizione per il raffrescamento estivo, cappotto termico da 10 cm, infissi in PVC con triplo vetro e impianto fotovoltaico da 3 kW per unità, per garantire un elevato risparmio energetico. Gli interni presentano pavimenti in gres porcellanato, porte interne bianche e sanitari sospesi, per un ambiente elegante e contemporaneo. Incluso nella proprietà anche un comodo posto auto singolo, situato in una zona centrale e ben servita. Una soluzione abitativa che coniuga fascino storico ed efficienza moderna, perfetta per chi cerca comfort, stile e tranquillità.

Contattaci per maggiori informazioni o per fissare una visita.

Le immagini presenti nell'annuncio sono rendering a scopo illustrativo e non rappresentano lo stato attuale dell'immobile.

Mostra tutto

Nelle vicinanze

Trasporto pubblico Trasporto pubblico
Paratico-Sarnico
Paratico-Sarnico
2,2 Km
Capriolo
Capriolo
3,0 Km
Sarnico
2,6 Km
Scuole Scuole
Scuole
1,7 Km
Scuola Secondaria di Primo Grado Giacomo Matteotti
2,7 Km
Scuola Primaria Suor Celina Manfredi
2,8 Km
Accademia
2,9 Km
Farmacia Farmacia
Farmacia Sant'Anna
860 m
Farmacia Perani
2,4 Km
Ospedali Ospedali
Ospedale di Sarnico
2,0 Km
Supermercati Supermercati
Simply
1,7 Km
MD
2,3 Km
Despar
2,4 Km
Supermercati
2,7 Km
Bar Bar
Bar Isolabella
900 m
Bar
930 m
Bar Corallo
1,6 Km
Fuori orario
2,2 Km
Araba Fenice
2,3 Km
Ristoranti Ristoranti
Agriturismo Cascina Oglio
1,3 Km
Ristoranti
1,9 Km
Azienda Agrituristica "La Piccola"
2,1 Km
Cascina Boneta
2,1 Km
L'Amalfitana S.R.L.
2,2 Km
Mostra tutto

Caratteristiche

Rif.:
61086631
Piano:
Su più livelli di 2
Totale piani:
2
Posti auto:
1
Camere da letto:
2
Arredamento:
Assente
Mostra tutto
Prezzo Prezzo
€ 240.000
Rata mutuo Rata mutuo
€ 1.139 / mese
Spese annue Spese annue
€ 500
Proponi il tuo prezzoProponi il tuo prezzo

Classe Energetica

A4
A4
A4
A4
A4
A4
A4
A4
A4
EP globale non rinnovabile:
11.00 kW h/m² anno
EP globale rinnovabile:
11.00 kW h/m² anno
EP invernale del fabbricato:
EP estiva del fabbricato:
Anno di costruzione:
1900
Riscaldamento:
Autonomo
Tipo impianto:
A pavimento
Tipo alimentazione:
Metano

Ti interessa visionare l'immobile?

Fissa un appuntamento  Fissa un appuntamento

Richiedi informazioni

Clicca su Leggi per aprire l'informativa
* Questi campi sono obbligatori

Calcola il tuo mutuo

Semplice e senza impegno
Anticipo

( % )
Mutuo

( % )

pochi semplici passi

inserisci i tuoi dati
Questionario completato
Grazie per aver richiesto un appuntamento senza impegno con un nostro Consulente del Credito e Assicurativo.

Hai inserito correttamente tutti i dati necessari e a breve riceverai una e-mail con un link da convalidare per inviare i tuoi dati.
Affiliato
Villongo Casa Srl
Viale Italia, 39 24060 Villongo (BG)

Il nostro staff


  • Paolo Plebani
    Affiliato

  • Simone Di Giovambattista
    Collaboratore

  • Cristian Donadoni
    Collaboratore

  • Aurora Nocenti
    Coordinatrice

  • Alice Previtali
    Collaboratrice
Viale Italia, 39 24060 Villongo (BG)
Zona: Villongo
Mostra su mappa
Orari: Lunedì - Venerdì: dalle 9.00 alle 12:30 e dalle 14:30 alle 19.30. Sabato: dalle ore 9.00 alle ore 12.30, pomeriggio su appuntamento.
Affiliato
Villongo Casa Srl
Viale Italia, 39 24060 Villongo (BG)

2026 Tecnocasa Franchising S.p.A. - P. IVA 08365160152 - Via Monte Bianco 60/A 20089 Rozzano (MI). Ogni agenzia ha un proprio titolare ed è autonoma. Privacy policy | Policy utilizzo | Cookie policy